Perspective linéaire
La perspective linéaire est le procédé des arts graphiques pour construire, sur une surface plane, le contour d'un sujet vu depuis un point de vue déterminé; on lui applique aussi les adjectifs aussi conique, classique, centrale, albertienne, optique[1]. Elle s'appuie sur les propriétés mathématiques de la projection centrale de l'espace sur un plan, qu'étudient et généralisent la géométrie descriptive et la géométrie projective.
Les artistes italiens du quattrocento ont formalisé les suppositions sur laquelle la perspective linéaire se base et en ont déduit ses règles d'élaboration, et ont fait de la perspective une base de l'esthétique picturale.
Pour sa construction, l'artiste effectue la construction à la règle et au compas ou calcule la position des lignes principales, et si nécessaire de chaque point de l'espace, connaissant le point d'observation du sujet, le point d'observation du tableau et les dimensions de celui-ci. Les droites reliant l'œil de l'observateur aux contours d'un objet forment un cône, qui doit être géométriquement semblable à celui qui relie l'œil du spectateur au contour de la représentation dans le tableau. L'image d'une droite du sujet est une droite.
Les principes issus de la Renaissance artistique supposent que le spectateur regarde le sujet à travers une fenêtre, ouverture verticale homologue au cadre du tableau, et que son œil est centré horizontalement. Cette convention permet de simplifier les constructions. Le spectateur comprend la représentation de l'espace même s'il ne se trouve pas exactement au point qui a servi de base à la construction, à condition que celui-ci soit suffisamment éloigné du tableau. Une distance de une fois et demie la plus grande dimension du cadre est commune (Parrens 2004, p. 11).
Éléments d'histoire
Avant la Renaissance, les traités d'optique s'intéressent à tous les aspects de la vision directe, réfléchie et réfractée, soit d'un point de vue géométrique, dans l'Antiquité, soit d'un point de vue physique et psychologique, y compris les visions mystiques, au Moyen Âge. Les traités d'optique de Roger Bacon, de John Peckham, de Vitellion, écrits en latin au XIIIe siècle, s'intitulent Perspectiva (Dalai Emiliani 1975, p. 8-9). Les traités de perspective rédigés à la Renaissance s'inspireront très largement de ces apports, comme le montre l'étude des parallèles textuels entre les deux ensembles de textes (Raynaud 2014).
La représentation artistique de l'espace sur un tableau sans profondeur, ou la modification de la profondeur apparente des bâtiments, prendra dans un premier temps le nom de perspective artificielle, pour la différencier de la science de la vision dont elle dérive, dite perspective naturelle. La géométrie de la projection sur une surface, qui sert aussi pour le dessin des ombres et la cartographie, devient alors un domaine mathématique, tandis que la perspective naturelle reprend son nom d'origine grecque, l'optique. En se généralisant, cette géométrie devient géométrie descriptive et géométrie projective, tandis que le terme perspective, sans plus, désigne l'ensemble des procédés de dessin et d'architecture destinés à communiquer au spectateur une notion de l'espace (Dalai Emiliani 1975, p. 10). Ces procédés se décomposent en perspective linéaire, qui détermine le dessin, et perspective aérienne, qui détermine la netteté et la couleur des objets distants.
La construction rigoureuse de la perspective se révèle laborieuse. Les artistes n'ont souvent pas le loisir de prendre les mesures qui pourraient lui servir de base ; ils peuvent d'ailleurs dans de nombreux cas se fier aux capacités d'interprétation du spectateur, qui se trouve d'ailleurs rarement au point de vue qui détermine la construction. Dès la Renaissance, ils peuvent utiliser, d'après nature, des instruments destinés à faciliter la tâche : le perspectographe, la chambre noire, la chambre claire. Au XIXe siècle, l'invention de la photographie permet la production d'images en perspective linéaire sans intervention artistique, hors le choix du point et de l'angle de vue et la disposition de l'éclairage. Des courants artistiques modernes s'en dégagent plus ou moins complètement.
Avec l'avènement des ordinateurs, les méthodes de mise en perspective automatique de dessin ont vu le jour. Les circuits spécialisés de l'infographie 3D, parfois appelée « 3D » pour abréger, effectuent en calcul matriciel les opérations fastidieuses de la perspective conique. L'opérateur définit la position de points principaux dans un repère cartésien à trois dimensions, et le principe de génération des lignes droites ou courbes et surfaces planes ou non qui les relient. Il peut appliquer à des ensembles des matrices de transformation, ce qui revient virtuellement à déplacer ou déformer des formes. Il définit un point de vue et un angle de vision. Le programme effectue tous les calculs qui aboutissent au dessin.
Trompe-l'œil

La représentation perspective n'est pas universelle dans la peinture figurative ; des œuvres magnifiques s'en dispensent (Francastel 1970, p. 136). Cependant, dans le domaine de la décoration en trompe-l'œil, elle est indispensable[2]. Ce fait a été plus ou moins reconnu depuis longtemps et on le voit clairement pris en compte sur certaines fresques romaines.
Dans le trompe-l'œil de la maison d'Auguste, l'artiste a bien saisi la nécessité de dessiner des lignes obliques pour communiquer de la profondeur au portique à un spectateur placé à quelque distance de la paroi. Des surfaces représentent le dessous des plafonds, d'autres le dessus des sols, ce qui donne une notion de la hauteur du spectateur. Selon l'architecte contemporain Vitruve, le peintre grec Agatharcos fut l'initiateur des recherches sur la perspective. Il aurait mentionné dans son traité des lignes de fuite issues d'un centre focal unique[3]. Dans le trompe-l'œil, un bon nombre de lignes convergent en effet sur la base du motif central de la fausse ouverture. Cependant, il faut supposer à l'auvent et à l'estrade peintes une forme inclinée vers le spectateur ou biscornue pour accepter dans cette fresque un exemple ancien de perspective conique ; ce n'est pas tout à fait invraisemblable. La fausse galerie, avec ses masques, rappelle une scène. Celle du théâtre à l'italienne est inclinée vers le spectateur du parterre. Pour juger de l'exactitude d'une représentation perspective, il faut connaître le volume qu'elle met à plat.
Sentiment de profondeur

On qualifie de raccourcissement perspectif le fait que les lignes qui sont parallèles dans la réalité, en volume, paraissent converger au loin vers des points. Quand il s'agit d'êtres humains ou d'animaux, dont la forme est connue du spectateur, mais dont la représentation perspective modifie les proportions, on parle de raccourci[5].
Cette tradition de raccourcissement sera utilisée très longtemps « au senti », et sans viser au trompe-l'œil. Dans l'enluminure qui représente le château de Mehun dans les Très Riches Heures du duc de Berry, au début XVe siècle, le caractère convergent des lignes du château, au premier plan, indique la profondeur, mais ces lignes déterminent un horizon qui ne peut être celui du paysage, donnant à l'ensemble une allure onirique.
Ce n'est pas que les imagiers du Moyen Âge n'aient aucune notion de la perspective. Les bâtisseurs de cathédrales ont su donner, par la perspective forcée de l'étagement des voussures successives, une impression de profondeur à l'entrée des cathédrales supérieure à celle qu'aurait une simple embrasure[6]. Mais l'esprit du temps assigne à l'image la mission de figurer la structure d'un univers qu'il juge compartimenté, à l'exemple des cercles de l'Enfer de Dante (Francastel 1970, p. 149). Les œuvres de cette époque manifestent souvent des perspectives linéaires partielles, appliquées de façon indépendante aux composantes significatives de l'image (Bergeon-Langle et Curie 2009, p. 67), ou des perspectives curvilignes, présentant synthétiquement une vue panoramique (Comar 1992, p. 66).
Si l'artiste ne travaille pas en vue de créer l'illusion, il peut d'autant plus confier à l'intelligence visuelle du spectateur la reconstitution du sujet. La psychologie moderne a reconnu la vision, et notamment la reconnaissance d'un volume dans une image, comme une activité cognitive (Francastel 1970, p. 140-141).
Place des points de fuite

Si l'on a conscience du raccourci perspectif depuis longtemps, il en va différemment des règles gouvernant l'arrangement et l'unicité des points de fuite. Le tableau de Van Eyck représentant les époux Arnolfini peint en 1434, souvent cité pour sa perspective approximative, permet de s'en convaincre. Si on prolonge les côtés de la fenêtre, ils déterminent un point de fuite. Les lignes des lames du parquet en définissent un autre. Celles du baldaquin et du dessus de lit se coupent encore ailleurs. Ces trois points de fuite de droites horizontales devraient se trouver sur la ligne d'horizon, qui se trouve au milieu du miroir sphérique, dans lequel on aperçoit l'artiste ; mais ils ne sont pas tous à la même hauteur. Ce célèbre tableau, quoique communiquant une impression de profondeur, n'applique pas les règles d'une perspective rigoureuse. Quelques années plus tard, l'artiste a acquis les méthodes de construction à point de fuite (Panofsky 2006, p. 135-143).
On attribue généralement l'invention de règles correctes gouvernant l'élaboration de la perspective aux peintres et aux architectes italiens du XVe siècle, et plus particulièrement aux Florentins[7]. Leon Battista Alberti aurait été le premier à en exposer le principe: l'intersection de la pyramide visuelle par le tableau. L’original de son écrit fondateur, un traité intitulé « della pittura » qui daterait de la première moitié du XVe siècle (1435), semble perdu. Nous ne possédons de l’ouvrage qu’une édition imprimée du début du XVIe. La réflexion d’Alberti serait partie d’une attraction spectaculaire que Brunelleschi avait organisée à Florence[8] en 1415. Ce dernier aurait réalisé un tableau si précis du baptistère, qu’il aurait pu inviter les badauds à venir le regarder et le comparer à la réalité. Son tableau aurait été équipé d’un dispositif oculaire obligeant le passant à positionner son œil de manière à observer le même paysage sur la peinture et dans la réalité. Cette attraction aurait eu un impact considérable sur les Florentins du XVe siècle, d’autant que Brunelleschi se vantait d’avoir utilisé une méthode à lui pour dessiner son tableau : la célèbre « Costruzione legittima ». Alberti, intéressé par les premiers développements de la perspective des artistes, en résume le principe qualitatif en une phrase-clé : le tableau doit présenter l'apparence d'une fenêtre sur le sujet[9]. Il est vertical, la ligne d'horizon le traverse, le spectateur se tient à quelque distance, au milieu de la base.
Ce récit conventionnel est toutefois sujet à caution car la tavoletta de Brunelleschi est perdue, il n'existe aucun document historique attestant d'une expérience publique et, de surcroît, les conditions énumérées par Antonio di Tuccio Manetti sont contradictoires entre elles (Raynaud 1998, p. 132-141)[10]. La difficulté à fixer l'origine de la perspective dans les travaux florentins du début du Quattrocento expliquerait pourquoi la plupart des perspectives du XVe siècle et du XVIe siècle sont inexactes. Des analyses ont montré par exemple que la Trinité de Masaccio présente d'importantes erreurs de construction (Field, Lunardi et Settle 1989, p. 31-118; Raynaud 2016, p. 53-67). C'est pourquoi certains préfèrent dater l'apparition de la perspective rigoureuse de la fin du XVIe siècle, époque qui coïncide avec la multiplication des recherches sur le sujet par les mathématiciens, comme Giovanni Battista Benedetti, Egnatio Danti ou Guidobaldo del Monte, et la diffusion d'un enseignement académique de la perspective linéaire[11].

Le tableau ci-dessus date de 1476, son auteur n'est pas certain, on hésite entre Luciano Laurana, Piero della Francesca et Leon Battista Alberti. Piero della Francesca est l'un des tout premiers artistes à avoir représenté des tableaux construits selon les règles de la perspective linéaire, au point qu'on lui en a longtemps attribué l'invention, d'autant plus qu'il a théorisé sa pratique dans un ouvrage : De prospectiva pingendi.
On remarque que les lignes horizontales perpendiculaires au tableau fuient toutes vers un point unique, situé sur la porte du bâtiment central. Les horizontales de direction droite gauche et les verticales sont grossièrement parallèles. L'ensemble constitue donc une perspective correcte (dite à un point de fuite, compte tenu de ce qu'une seule des trois directions principales présente un point de convergence fini).
Pour ce qui est de sa pratique en peinture et dessin, cette version restreinte de la perspective linéaire fut tenue d'application quasi-obligatoire par les peintres, jusqu'à la vulgarisation de la photographie pendant la seconde moitié du XIXe siècle. Elle constitue de nos jours encore un élément indispensable de la formation aux arts graphiques, même si la toute-puissance de ses règles est depuis longtemps déchue.
Après avoir été l'objet d'études par des artistes illustres tels Piero della Francesca, Albrecht Dürer, ou Léonard de Vinci, la théorie de la perspective fut également analysée par des géomètres célèbres des XVIIe et XVIIIe siècles, notamment Simon Stevin, Girard Desargues, Blaise Pascal, Willem Jacob 's Gravesande, Brook Taylor et Jean-Henri Lambert.
Limitation du champ
.jpg)
La représentation de la réalité en utilisant les règles de la perspective linéaire présente une limitation tout à fait nette ; celle du champ d'observation. Si le champ est trop vaste, les spectateurs qui ne sont pas au point de construction de la perspective sentent des déformations incompréhensibles, comme le souligne Vignole au XVIe siècle[12]. Lorsque l'angle de champ est assez faible, le spectateur comprend le volume en perspective même s'il ne se trouve pas au point de distance que cet angle définit. Les artistes sont donc portés à sacrifier l'étendue de la représentation, au profit de la liberté de mouvement du spectateur, qui n'est pas astreint à regarder le tableau dans un œilleton (Comar 1992, p. 67-68).
Lorsque la réalité représentée en perspective conique dépasse un certain angle, et que l'observateur n'est pas à la courte distance du tableau qu'implique cette représentation, la compréhension du volume est perturbée[13]. La représentation semble artificielle. La pratique académique suggère de ne pas dépasser la quarantaine de degrés pour l'angle de champ dessiné sur le tableau (Parrens 2004, p. 11).
Avec une soixantaine de degrés d'ouverture, correspondant à un point d'observation plus proche que la dimension du tableau, l'observateur situé à la distance ordinaire ressent une déformation significative face à une vue en perspective conique. Panofsky attribue cet effet à l'angle du champ de vision de l'œil humain, et au caractère sphérique de notre rétine. Néanmoins la réalité est vraisemblablement plus subtile. La vision ne dépend pas de la forme de la rétine, mais de l'interprétation par le cortex visuel de variations d'influx nerveux résultant des mouvements oculaires[14]. Le champ de vision est un concept mal défini : on se voit obligé de distinguer de plusieurs visions de natures différentes selon le champ d'observation.
Construction
Principe

Le fondement de la perspective linéaire repose sur le principe de la projection conique centrale sur un plan qu'on appelle plan du tableau.
L'image d'un point de l'espace est l'intersection de la droite qui le joint au point de vue avec le plan du tableau.
Ce principe a été reconnu très tôt comme constituant la base de la représentation en perspective. Albrecht Dürer dessine des fils tendus entre la mandoline réelle et le point de vue, tandis que l'artiste mesure la position du point dans le plan du tableau. La construction d'une perspective selon les méthodes strictes de la projection centrale au travers d'une fenêtre de vision a constitué ce que d'Alberti a qualifié de « costruzione legittima » (construction légitime), pour la distinguer des méthodes faisant appel aux points de fuite qu'il avait introduites, et qu'il nommait « costruzione abbreviata ».
Une telle projection réalise, à l'inversion de la figure près, ce qu'on verrait sur un écran plat disposé dans une chambre noire équipée d'un orifice ponctuel, si celle-ci pouvait exister[a].
On peut montrer assez facilement que dans cette projection, l'image d'une droite de la réalité est une droite, dès lors qu'elle n'est pas vue de bout.

Le perspectographe, un écran quadrillé, permet de construire la perspective sans erreur, en réduisant le problème à une mise au carreau.
Raccourcissement perceptif
Pour percevoir le volume le système visuel se fonde sur une quantité d'indices. Tous ne sont pas reproductibles sur une image ; mais si elle donne des indications suffisamment concordantes, le spectateur les interprète sans effort conscient.
Dans la perception que nous avons du monde environnant, plus un objet est lointain, plus il paraît petit. On peut aisément vérifier qu'en effet,
la taille apparente d'un objet est inversement proportionnelle à sa distance au point d'observation.
Les deux rails d'une voie ferrée, dont seul l'écartement fixe permet la circulation des trains, se fondent à l'œil nu en une tache confuse à une distance de deux ou trois kilomètres.
Points de fuite
Deux droites parallèles ont, par définition, toujours la même distance entre elles. Du point de vue de l'observateur, cette distance se réduit, à proportion inverse de la distance, jusqu'à ce que les deux droites deviennent indiscernables. Leur représentation finit donc par se confondre en un point, que l'on appelle point de fuite[b].
Il n'est pas nécessaire que les segments parallèles se poursuivent jusqu'à se confondre, ni que le point de convergence soit dans le tableau, pour que l'on utilise cette propriété pour construire l'enveloppe géométrique du sujet. Le dessin comporte deux sortes de points, ceux qui représentent un point du sujet, et les points de construction, dont les points de fuite.
Toutes les droites parallèles convergent vers un seul et unique point de fuite, qui est ainsi caractéristique d'une direction de l'espace. Du fait qu'elles semblent « fuir » vers leur point de fuite, on appelle parfois fuyantes les droites représentées sur le tableau.
On appelle « point principal » de la perspective le point de fuite déterminé par la direction perpendiculaire au plan du tableau[15].
Lignes de fuite

Lorsqu'on représente un plan parallèle à celui du tableau, ses parallèles se représentent comme des parallèles. On dit qu'il est frontal (Bergeon-Langle et Curie 2009, p. 72).
Lorsqu'on représente les autres plans en perspective, les directions de ce plan sont représentées par une infinité de points de fuite, qui forment sur la perspective une ligne droite appelée ligne de fuite du plan.
Tous les plans parallèles ont la même ligne de fuite. La ligne de fuite d'un plan est donc l'intersection du tableau avec le plan parallèle passant par le point de vue ; ce plan se projette selon une droite qui est donc sa ligne de fuite.
Les plans horizontaux ont pour ligne de fuite la ligne d'horizon[c].
On appelle angle de fuite du plan l'angle complémentaire de celui formé entre la normale au plan et la normale au plan du tableau[réf. souhaitée].
Points de distance
Supposons une droite dans un plan du sujet. Toutes les droites parallèles de ce plan convergeront, sur le tableau, vers un même point de la ligne de fuite du plan. Il suffit d'en construire une.
Soient h l'écart entre le plan de la droite et celui, parallèle, passant par le point d'observation, dtableau, la distance entre le point d'observation et le tableau, et dobjet la distance d'un point de cette droite à l'observateur. h est invariable ; sa représentation sur le tableau est longue de h÷dobjet×dtableau elle finit par se confondre avec un point, c'est ainsi qu'elle se confond avec la ligne de fuite du plan.
Soit x la longueur du segment parallèle au tableau qui joint la droite parallèle à celle que nous voulons construire passant par le point d'observation et l'axe principal du tableau. x est proportionnel à la distance ; plus on s'éloigne, plus il grandit ; quelle que soit la distance d à l'observateur, le rapport x÷d est constant. La longueur du segment est donc égale à d×a, avec a caractéristique de l'angle que fait la droite que nous construisons à l'axe principal du tableau[d]. La représentation de la longueur du segment, sur le tableau, sera, comme toujours, longue de x÷dobjet×dtableau. Remplaçant x par dobjet×a, on obtient a×dtableau. Il est un cas où le point de fuite est particulièrement facile à construire ; c'est celui où a est égal à 1, c'est-à-dire, quand l'écart de la droite à l'axe du tableau est égal à la distance à l'observateur. C'est l'angle que fait la diagonale d'un dallage carré dont un côté est parallèle au tableau. Ce dallage concret peut aussi servir de construction ; il constitue un repère pour les deux dimensions perpendiculaires au tableau.
Les points de fuite de ces diagonales, de part et d'autre du tableau, s'appellent les points de distance. Leur distance au point principal est égale à la distance d'observation.

Dans la perspective classique, le plan qui sert de repère est horizontal ; c'est le classique plan d'architecture, et on l'appelle plan géométral (Bergeon-Langle et Curie 2009, p. 74).
La méthode de construction d'un plan principal carrelé en utilisant des carreaux dont les diagonales fuient aux deux points de distance est due à Alberti. C'est la fameuse costruzione abbreviata, parfois appelée perspective à deux points de fuite.
Cette construction permet de déterminer rapidement le raccourcissement perspectif du plan géométral. C'est la plus simple des constructions de base de la perspective linéaire.
On construit, classiquement, la perspective avec un point d'observation à une fois et demie la plus grande dimension du tableau. Les points de distance se trouvent donc largement hors du cadre. Pour ramener les points de construction dans le tableau, ou dans une marge étroite autour de lui, on construit souvent, plutôt qu'un dallage carré, des rectangles de proportion 3 en profondeur pour 1 en largeur. Les points de fuite de leurs diagonales se trouvent alors, avec une distance de une fois et demie la largeur du tableau, à l'intersection du cadre et de la ligne de fuite (Parrens 2004, p. 13).

Orthogonalité - directions perpendiculaires
Si, dans l'objet, deux lignes sont perpendiculaires, le rapport entre largeur et profondeur s'inverse. Il en résulte que sur la ligne de fuite de leur plan, leurs points de fuite se trouveront l'un à dimage×a, l'autre à dimage÷a du point central de cette ligne de fuite.
On peut y voir une relation de Newton, et en déduire que les points de fuite caractérisant deux directions orthogonales du plan forment avec les points de distance de ce plan une division harmonique sur la ligne de fuite.
Dès qu'on connaît la position des points de distance on peut donc construire la perpendiculaire à une fuyante donnée par de multiples méthodes dont la plus simple est probablement la suivante.
Ligne de terre
L'intersection d'un plan avec le plan du tableau définit une droite que l'on appelle ligne de terre.
- La ligne de terre d'un plan est parallèle à sa ligne de fuite. On appelle hauteur de la perspective du plan la distance entre la ligne de terre d'un plan et sa ligne de fuite.
- Lorsque le plan considéré est un plan principal, la ligne de terre du plan est une ligne de terre de la perspective. (Lorsqu'on ne précise pas, la ligne de terre est en général comprise comme étant la ligne de terre horizontale de la perspective.)
- La distance entre la ligne de terre et la ligne de fuite d'un plan principal de la perspective est la même quel que soit l'angle fait par le plan avec l'horizontale. On l'appelle hauteur de la perspective.
- Le rapport entre les longueurs mesurées sur une ligne de terre et les longueurs réelles est l'échelle de la perspective.
- La donnée de la ligne de fuite, de son point de distance, et de la ligne de terre d'un plan principal définit entièrement la projection centrale ainsi que l'échelle qu'on a utilisées dans la représentation. Autrement dit, de telles données définissent entièrement la perspective. (Noter que si le plan n'est pas un plan principal, il faut de plus se donner la distance de son point de fuite principal au point de fuite principal de la perspective).
Récapitulatif
Ce que nous avons dit se retrouve sur le schéma ci-contre d'une situation de vue en perspective :
- Le point de fuite des perpendiculaires au tableau est le point de fuite principal, dit aussi centre de la perspective.
- Le plan carrelé à représenter étant parallèle à la direction du regard est un plan géométral.
- La ligne de terre LT est l'intersection de ce plan avec le tableau.
- La ligne de fuite est la parallèle à la ligne de terre. Elle passe par le point de fuite principal.
- La distance D est celle de l'observateur au tableau.
- La hauteur h est la distance entre la ligne de terre et la ligne de fuite.
Trois types de construction simplifiée
La pratique du dessin d'architecture notamment conduit à une terminologie spécifique pour les représentations présentant trois directions privilégiées orthogonales, tels les alignements d'édifices disposés parallèlement (directions d'un repère orthogonal). On y distingue plusieurs cas[e] :
- la perspective à un point de fuite (lorsque le tableau est parallèle à une des faces du cube de référence),
- la perspective à deux points de fuite (lorsque le tableau est perpendiculaire à une des faces du cube de référence),
- la perspective à trois points de fuite (lorsque le tableau n'est perpendiculaire à aucune face du cube de référence).
Perspective à un point de fuite.(FRONTAL)GB.
Perspective à 2 points de fuite - (OBLIQUE)GB. Le point de fuite droit sort des limites du tableau.
Perspective à 3 points de fuite. (SPATIAL)GB.(vue en plongée).
Perspective à 3 points de fuite (vue en contre-plongée).
Ces distinctions sont encore valables dans le cas où on voudrait représenter des objets à arêtes parallèles (empilements de parallélépipèdes), ce qui est très souvent le cas pour les alignements d'immeubles situés le long de rues. Pour la représentation d'objets de natures différentes, c'est-à-dire pour des objets présentant de multiples lignes dont aucune n'est véritablement dominante, il n'y a pas lieu de distinguer ces divers types de perspectives.
La construction de « boîtes » contenant les objets de forme complexe, permet la mise en place de la perspective faite, pour le détail, au sentiment. Dans tous les cas, situer un point défini par des coordonnées orthogonales revient à dessiner un cube.
Chaque direction de l'espace détermine un point de fuite, sauf les directions qui sont parallèles au plan du tableau. Pour ces directions, il n'y a pas à proprement parler de point de fuite. Les droites parallèles de la réalité restent parallèles sur le tableau. On dit aussi que les points de fuite sont rejetés à l'infini du tableau (sur lequel deux droites parallèles se coupent à l'infini).
Tant qu'on n'a pas besoin d'exactitude géométrique, il suffit de connaître la perspective d'un assez petit nombre de points pour représenter le reste au senti.
Comme les constructions à un et deux points de fuite sont les plus faciles, on les utilise au maximum dans la pratique du dessin à la main. Les perspectives générales peuvent représenter un casse-tête assez prenant, du fait que la représentation d'objets présentant un grand nombre de lignes est plus difficile à effectuer que celle de simples parallélépipèdes.
Équation mathématique
La projection en perspective permet le rendu graphique d’objets en 3 dimensions sur un écran. Ce procédé est décrit pour le rendu 3D par ordinateur dans l’article du pipeline 3D. Plus simplement pour une caméra placée à l’origine donc l’axe optique est confondu avec l’axe z du monde et un écran parallèle à l’axe xy situé entre la caméra et l’objet :
- x, y, z sont les coordonnées d’un point à 3 dimensions dans le repère de la caméra
- f est la distance focale ou distance entre la caméra et la surface de projection. Elle est parfois décomposée en deux valeurs fx et fy car les pixels du capteur ne sont pas parfaitement carrés.
- est la position de l’axe optique sur l’écran. Ce décalage est nécessaire car les coordonnées des pixels sont positionnées par rapport au coin supérieur gauche de l’écran (x à l’horizontal vers la droite, y vertical vers le bas) alors que l’axe optique passe généralement par le milieu de l’écran. Dans le cas général .
- est la position du point correspondant à la projection.
Les distances de la caméra et de l’écran peuvent être exprimées en mètres ou en pixels (distance focale en mètre divisée par la taille d’un pixel sur le capteur/écran) pour obtenir les coordonnées en pixels sur l’image.
Le point de projection est l’intersection entre le plan de l’écran et la droite reliant la caméra au point 3D. D’après le théorème de Thalès s traduit la non orthogonalité des cellules du capteur mais cette valeur est négligeable et vaut généralement 0.
Quelques tracés en perspective linéaire
Carrelages plans
Le tracé de carrelages plans est un thème tout à fait fréquent des perspectives de la Renaissance.
C'est qu'un carrelage plan définit entièrement la projection centrale, donc le point de vue, dès lors que le plan carrelé est un plan géométral : les cercles, dont les diamètres définissent respectivement les points de fuite des côtés des carrés et leurs diagonales, se coupent sur le cercle dont le rayon est égal à la distance, et le centre est situé au point de fuite principal.
Pavages carrés - points de distance d'une droite du plan
La construction précédente ne fournit que celle d'un carrelage rectangle dans le cas où la perspective est déjà définie. Lorsque les points de distance du plan sont imposés par ailleurs, on a recours à une autre technique, qui provient du fait que les pavages carrés présentent des diagonales fuyant dans des directions situées à 45° des côtés.
La construction la plus simple est probablement celle de la figure ci-contre. Pour construire le point de fuite D' des diagonales du pavage carré fuyant aux points X et Y, il suffit de s'aviser de ce que XD'=XO.
On obtiendrait un pavage différent mais carré également en utilisant le point D tel que YD=YO au lieu du point D'.
Perspective à trois points de fuite et point de fuite principal
Sur une perspective conique à trois points de fuite, le point de fuite principal est situé à l'orthocentre du triangle formé par les points de fuite (c'est-à-dire au point de concours des trois hauteurs).
Le point de fuite de la diagonale d'un cube est situé au centre du cercle inscrit au triangle des points de fuite.
Perspective à trois points de fuite et homologie
Comme le montre la figure de droite, deux plans carrelés peuvent toujours être mis en correspondance au moyen d'une projection centrale plane. (Il suffit de s'imaginer ces deux plans représentant deux faces d'un trièdre trirectangle. Une diagonale de la troisième face visible du parallélépipède fuit nécessairement vers un point qui permet de mettre les deux carrelages initiaux en correspondance - voir figure ci-contre.)
La correspondance ainsi mise en évidence porte le nom d'homologie. Elle permet notamment de tracer des perspectives d'objets cylindriques dont on connaît la section, et a été largement utilisée en architecture par le passé sous le nom de méthode du géométral.
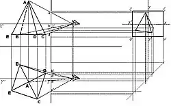
Méthode du géométral
La construction présentée ici a été très utilisée par les architectes avant l'avènement des machines de dessin automatique. Elle est basée sur l'idée qu'il existe une relation d'homologie entre le plan d'un bâtiment (vue de dessus), et la vue en perspective de ce plan.
Sur le schéma ci-contre, on suppose connus les points a, b, c, et d, définissant un rectangle vu en plan. Pour représenter ce même rectangle vu en perspective, il suffit de s'imaginer les points de la vue de dessus représentés par l'intersection de deux lignes imaginaires, l'une fuyant à 90°, l'autre à 45°.
Dans la perspective la première série de ces lignes fuira vers le point de fuite principal, et la seconde vers le point de distance.
Les droites issues des points de la vue de dessus de l'objet à représenter coupent donc la ligne de terre (LT) en des points qu'il suffit de joindre aux points de fuite pour obtenir la perspective de ces lignes.
L'intersection des deux lignes ainsi obtenues dans la vue en perspective du plan permettra, elle, de dessiner les points a, b, c, et d de la vue en perspective du rectangle.
Sous l'hypothèse que la vue de dessus utilisée, représente un plan géométral, les distances vues en perspective selon la direction perpendiculaire sont vues en vraie grandeur et ne requièrent dont pas de correction perspective (cette hypothèse complémentaire est à l'origine du nom de la méthode).
Pour la réalisation de vues plongeantes ou de contre-plongées, la méthode du géométral nécessite quelques aménagements, d'ailleurs assez simples.
Méthode de Monge
Comme pour la perspective cylindrique, Monge, avec sa géométrie descriptive, a donné une méthode de construction des perspectives coniques, méthode qui s'apparente à la « costruzzione legittima ».
Cette méthode est simple, mais d'une application laborieuse. Néanmoins, peu de méthodes de construction ne recourent pas a priori aux points de fuite, et s'appliquent avec indifférence à tous les points, tous les volumes et tous les angles de vue. Pour minimiser le nombre de points à construire, on remarque que les points remarquables se trouvent souvent à l'intersection de deux droites, que deux points définissent une droite, et que toutes les droites parallèles non perpendiculaires au plan du tableau convergent en un point. À partir de la troisième droite, il suffit de construire un second point.
Annexes
Bibliographie

| Auteur | année | ouvrage |
|---|---|---|
| Leon Battista Alberti | 1435 | De pictura |
| Piero della Francesca | 1470 | De prospectiva pingendi |
| Albrecht Dürer | 1525 | Underweysung der Messung mit dem Zirckel und Richtscheyt |
| Daniele Barbaro | 1559 | La practica della perspettiva |
| Jacopo Barozzi da Vignola | 1583 | Le due regole della prospettiva practica con i commentarii del Ignazio Danti |
| Guidobaldo del Monte | 1600 | e Marchionibus montis perspectiva libri VI |
| Simon Stevin | 1605 | Derde Stuck der Wisconstighe ghedachtnissen. Van de Deursichtighe |
| Girard Desargues | 1636 | Exemple de l'une des manières universelles de SGDL touchant la pratique de la perspective |
| Jean-François Niceron | 1638 | La perspective curieuse ou magie artificielle des effets merveilleux |
| Willem Jacob 's Gravesande | 1711 | Essai de perspective |
| Brook Taylor | 1719 | New principles of linear perspective |
| Johann Heinrich Lambert | 1759 | La perspective affranchie de l'embarras du plan géométral |
| Jean-Baptiste Antoine Cloquet | 1823 | Nouveau traité élémentaire de perspective à l'usage des artistes |
- Ouvrages modernes
- Erwin Panofsky (trad. de l'allemand par Guy Ballangé), La perspective comme forme symbolique : et autres essais [« Die Perspektive als "symbolische Form" »], Paris, Minuit, (1re éd. 1927, 1975 en français) (ISBN 978-2-7073-0091-1).
- Pierre Francastel, « Naissance d'un espace, mythes et géométrie au quattrocento », Revue d'Esthétique, no 4, ; repris dans Pierre Francastel, Peinture et société : naissance et destruction d'un espace plastique : de la Renaissance au cubisme, Denoël, (1re éd. 1951) puis dans Pierre Francastel, Études de sociologie de l'art, Gallimard, coll. « Tel » (no 152), , p. 131-189.
- Marisa Dalai Emiliani, « La question de la perspective », dans Erwin Panofsky, La Perspective comme forme symbolique, (1re éd. 1975).
- Hubert Damisch, L'origine de la perspective, Paris, Flammarion, .
- Judith Field, Roberto Lunardi et Thomas B. Settle, « The perspective scheme of Masaccio's Trinity fresco », Nuncius, vol. 4, .
- Philippe Comar, La perspective en jeu, Paris, Gallimard, coll. « Découvertes », .
- Philippe Hamou, La vision perspective (1435-1740), Paris, Payot, .
- Dominique Raynaud, L'Hypothèse d'Oxford. Essai sur les origines de la perspective, Paris, PUF, .
- Daniel Arasse, L'annonciation italienne. Une histoire de perspective, Paris, Hazan, .
- Daniel Arasse, Histoires de peintures, Paris, Gallimard, .
- Dominique Raynaud, Optics and the Rise of Perspective: A Study in Network Knowledge Diffusion, Oxford, Bardwell Press, .
- Dominique Raynaud, Studies on Binocular Vision, Cham, Springer International, .
- Ouvrages didactiques
- Jean-Claude Ludi, La perspective 'pas à pas': Manuel de construction graphique de l'espace et tracé des ombres, Paris, Dunod, .
- Louis Parrens, Traité de perspective d'aspect : tracé des ombres, Paris, Eyrolles, (1re éd. 1961).
- Georges Tubeuf, Traité de perspective, (lire en ligne).
Articles connexes
Autres articles connexes
- Renaissance à Urbino ; Renaissance italienne ; Renaissance florentine ; Renaissance ombrienne
- peinture de la Renaissance ; Art de la Renaissance
- Leon Battista Alberti, Piero della Francesca ; Filippo Brunelleschi ; Donato Bramante ; Luciano Laurana ; Albrecht Dürer ; Abraham Bosse ; Andrea Mantegna ; Melozzo da Forli ; Leonard de Vinci ; Jacopo Barozzi da Vignola ; Gaspard Monge ; Erwin Panofsky ; Guidobaldo del Monte ; Girard Desargues...
Notes et références
Notes
- ↑ Une chambre noire réelle a une ouverture d'une certaine taille, généralement réglée par un diaphragme. De ce fait, les lignes sont d'autant plus nettes que l'objet est proche de la distance de mise au point
- ↑ Les mathématiciens ont dérivé de cette notion celle de point à l'infini et en ont tiré plusieurs notions fondamentales des mathématiques modernes (géométrie projective, compactification, etc.)[réf. souhaitée].
- ↑ Du fait de la courbure de la surface terrestre, l'horizon, limite entre ciel et terre, se trouve légèrement plus bas que la ligne de fuite des plans horizontaux. L'écart dépend de l'altitude de l'observateur. On doit en tenir compte en navigation astronomique, mais la différence est généralement imperceptible à moins que l'altitude ne soit élevée. L'angle entre l'horizontale et la ligne d'horizon, à une altitude a, est arc cosinus (r/(r+a)), où r est le rayon de la terre et a l'altitude. Pour une altitude de 80 m, l'angle est de 5 millièmes, moins de 14 secondes d'arc, 1 % de la hauteur d'un cadre 4×3 à la distance d'observation normale. Pour une altitude de un mètre, le décalage est de l'ordre du millième de la hauteur du tableau. Ces différences sont bien trop faibles pour gêner l'interprétation de la perspective. La perspective n'est de toute façon exacte que quand l'observateur se trouve au point d'observation prévu par la géométrie, ce qui n'est pas fréquent en peinture.
- ↑ En termes de trigonométrie on dira que x÷d est la tangente de l'angle que la droite fait à l'axe principal du tableau.
- ↑ Mathématiquement, la perspective « à un point de fuite » présente deux points de fuite à l'infini, et celle « à deux points de fuite » a un point de fuite à l'infini[réf. souhaitée].
Références
- ↑ Ségolène Bergeon-Langle et Pierre Curie, Peinture et dessin, Vocabulaire typologique et technique, Paris, Editions du patrimoine, , 1249 p. (ISBN 978-2-7577-0065-5), p. 64.
- ↑ Anne Souriau (dir.), Vocabulaire d'esthétique : par Étienne Souriau (1892-1979), Paris, PUF, coll. « Quadrige », , 3e éd. (1re éd. 1990), 1493 p. (ISBN 978-2-13-057369-2), p. 1192.
- ↑ Jean Charbonneaux, Roland Martin et François Villard, Grèce classique, Gallimard, coll. « L'Univers des Formes », , p. 307.
- ↑ Les Très Riches Heures du duc de Berry, musée Condé, Chantilly, ms.65.
- ↑ Ségolène Bergeon-Langle et Pierre Curie, Peinture et dessin, Vocabulaire typologique et technique, Paris, Editions du patrimoine, , 1249 p. (ISBN 978-2-7577-0065-5), p. 66 ; Souriau 2010, p. 1267.
- ↑ Philippe Comar, La perspective en jeu, Gallimard, coll. « Découvertes » (no 1358), , p. 21.
- ↑ Francastel 1970, p. 131,144-145, Daniel Arasse, Histoires de peintures, Paris, Gallimard, coll. « Folio essais », , p. 59 « L'invention de la perspective ».
- ↑ (pt + fr) « La perspective conique », sur www.profcardy.com (consulté le ).
- ↑ Leon Battista Alberti (trad. Claudius Popelin), De la statue et de la peinture, Paris, Lévy, (lire en ligne), p. 124.
- ↑ Voir Dominique Raynaud, « L’émergence de l’espace perspectif: effets de croyance et de connaissance », dans Les Espaces de l’homme. Symposium international du Collège de France, Paris, Odile Jacob, , p. 333-354
- ↑ Raynaud 2016, p. 35
- ↑ Egnation Danti (trad. Pascal Dubourg Glatigny), Les deux règles de la perspective pratique de Vignole, Paris, bilingue, (1re éd. 1583) (ISBN 2-271-06105-9).
- ↑ Ernst Wilhelm von Brücke, Principes scientifiques des beaux-arts : essais et fragments de théorie, Paris, (lire en ligne), p. 20-27 explicite les perceptions du spectateur et propose comme limite l'inscription du tableau dans un carré sur pointe dont les angles se trouvent à la distance d'observation du point principal
- ↑ Richard Langton Gregory, L'œil et le cerveau : la psychologie de la vision [« Eye and Brain: The Psychology of Seeing »], De Boeck Université, (1re éd. 1966).
- ↑ Bergeon-Langle et Curie 2009, p. 72 ; Parrens 2004, p. 9.
- Portail de la géométrie
- Portail de la peinture
- Portail de l’architecture et de l’urbanisme