Grande synagogue de Czernowitz (1877-1941)
| Grande synagogue de Czernowitz | ||
| ||
| Présentation | ||
|---|---|---|
| Culte | Judaïsme | |
| Début de la construction | 1873 | |
| Date de démolition | 1974 | |
| Géographie | ||
| Pays | Autriche-Hongrie / Ukraine | |
| Commune | Czernowitz / Tchernivtsi | |
| Coordonnées | 48° 17′ 35″ nord, 25° 55′ 59″ est | |
| Géolocalisation sur la carte : Ukraine
| ||
La grande synagogue de Czernowitz aussi dénommée le Temple, est un bâtiment de style néo-mauresque, construit en 1873 à Czernowitz, alors partie de l'empire austro-hongrois, maintenant Tchernivtsi en Ukraine. La synagogue a été confisquée par le gouvernement soviétique en 1940 et incendiée par les soldats allemands et roumains en 1941.
Czernowitz, capitale du duché de Bucovine, est rattaché à la Roumanie en 1918 sous le nom de Cernăuți. Elle est prise par l'Armée rouge en , et reprise par les Roumains alliés à l'Allemagne nazie en 1941. Elle sera libérée par les troupes soviétiques en 1944 et fera partie de la République socialiste soviétique d'Ukraine de 1947 à 1991, puis de l'Ukraine.
Historique
Le Baron von Schmück, gouverneur de Bucovine propose, en 1857, à la communauté juive de Czernowitz la construction d'une synagogue. Des fonds commencent à être recueillis, mais l'idée est assez vite abandonnée[1],[2].
En 1872, la communauté juive de Czernowitz se divise en deux groupes, les réformés avec pour rabbin Eliezer Elijah Igel et les orthodoxes dirigés par le rabbin Benjamin Arie Weiss. Les deux communautés se regrouperont en 1875 pour de nouveau ne former qu'une seule communauté, mais avec des groupes internes de sensibilité différente.
Le groupe réformé, plus riche, décide de faire construire une synagogue. Celle-ci, œuvre de l'architecte polonais Julian Zachariewicz (1837-1898), professeur à l'Université nationale polytechnique de Lviv, est inaugurée en 1878. Un compromis est trouvé entre les différents groupes. La liturgie n'est pas entièrement réformée. Il y a bien un chantre (Hazzan) et un chœur, mais il n'y a pas d'orgue. Le rabbin par contre fait son sermon en allemand, et la Torah est lue face aux fidèles et non en direction de l'Arche sainte.
En 1867, les juifs de Bucovine obtiennent leur pleine émancipation, et de nombreux Juifs décident de participer à la politique nationale et locale. Deux maires de Czernowitz sont juifs, de même que cinq recteurs de l'université. Les Juifs occupent alors une position importante dans les sphères économiques, sociales et culturelles de la ville. En 1880, l'empereur François-Joseph, visitant Czernowitz, se rend à la synagogue le jour de Yom Kippour.
En 1880, Czernowitz compte 14 449 Juifs sur un total de 45 600 habitants, soit 31,7 pour cent de la population; 17 359 Juifs en 1890 ; 21 587 en 1900 ; 28 613 en 1910, soit 32,8 pour cent de la population et 43 701 en 1919 soit 41,7 pour cent de la population. Dans la ville et plus particulièrement dans les villages et bourgs alentour, la majorité de la population juive parle le yiddish et maintint une tradition orthodoxe. Seule l'élite cultivée parle l'allemand et pratique le rite réformé.
Le ténor Joseph Schmidt (1904-1942) est enfant de chœur à la synagogue avant de devenir chantre et donner des concerts en solo.
Après l'annexion de la Bucovine du nord, dont Czernowitz est la ville la plus importante, par le gouvernement soviétique en 1940, la synagogue est fermée et confisquée.
Le , les armées allemande et roumaine, accompagnées de l'Einsatzkommando 10b, reprennent la ville. La synagogue est incendiée par les Allemands et leurs alliés roumains. Seuls subsistent les murs extérieurs. Le jour même, 2 000 Juifs sont massacrés dont le grand rabbin, Abraham Mark, le chef des chantres et les principaux dirigeants de la communauté. Le reste de la population juive est déporté en Transnistrie, où les deux tiers périront. À la fin de la guerre, la plupart des survivants ne retournent pas à Chernivtsi, devenue soviétique, mais s'installent en Roumanie ou émigrent en Israël.
En 1959, les ruines sont réutilisées partiellement pour reconstruire un bâtiment qui servira de cinéma sous le nom d'"Octobre", ensuite "Chernivtsi". Le bâtiment n'a plus de coupole et ressemble peu au bâtiment original.

Architecture
La communauté donne des instructions précises à Zachariewicz: la synagogue doit être orientée vers l'est et tous les fidèles doivent pouvoir voir l'Arche sainte et l'autel (la Bimah) de leur siège. Pendant la construction, la communauté change d'avis en ce qui concerne le plafond du hall de prières. Le hall de prières doit être couvert sur sa totalité d'une immense coupole au lieu du plafond en bois, avec en son centre une petite coupole en verre tel qu'il était prévu dans le plan initial. Ces modifications demandées après le début des travaux, obligent à rendre plus massives les colonnes de soutien en fonte et à augmenter l'épaisseur des murs[3]. ills. 28-32.
Description
La synagogue de style mauresque est un bâtiment isolé situé à l'intersection de deux rues et faisant face à une troisième. Le bâtiment de deux étages au-dessus du rez-de-chaussée, se compose de deux parties: la partie ouest comprenant les vestibules, les escaliers et les bureaux de la communauté et la partie est formant le hall de prières avec une abside et couronné d'une grande coupole. La partie ouest est plus étroite que la partie est. Les murs sont en brique et crépi. La façade principale, où se situe l'entrée, est à l'ouest et le bâtiment est orienté d'ouest en est, avec l'abside, où est disposée l'Arche sainte, à l'est. Les hommes sont assis au rez-de-chaussée, au centre du hall de prières, et font face à l'Arche sainte, tandis que les femmes sont assises dans les deux étages de galeries situées sur les côtés ouest, nord et sud du hall.
Le bâtiment fait en tout 39 mètres de long sur 24 mètres de large. Sa coupole culmine à 39 mètres. Lors de la réutilisation des murs en 1959 pour transformer le bâtiment en un cinéma, la coupole n'a pas été reconstruite et a été remplacée par un pignon avec un toit en pente..
L'extérieur de la synagogue

Le bâtiment possède trois niveaux, le rez-de-chaussée et deux étages. Le rez-de-chaussée est percé d'oculi ainsi que de fenêtres doubles. Des niches à arches rondes encadrent sur toute la hauteur des deux étages, les fenêtres doubles et triples ainsi que les rosaces du premier et du second étage, les unissant ainsi comme de hautes fenêtres uniques. Les façades sont soulignées par des moulures horizontales au-dessus du socle, et entre le rez-de-chaussée et le premier étage. Le bâtiment est surmonté d'un entablement moulé crénelé. Les façades sont divisées verticalement par des pilastres qui reflètent l'organisation intérieure de l'espace. Chaque pilastre est surmonté d'une tourelle décorée d'arcs aveugles en plein cintre surmontée d'un petit faîteau en forme de bulbe terminé par une flèche.
La façade principale à l'ouest, est composée d'une partie centrale avec deux avancées en forme de tour de chaque côté. Au centre, la large porte d'entrée décorée est encadrée par une arche soutenue par deux colonnes sur un socle. Au-dessus une fenêtre triple, à arc en fer à cheval, est couronnée par une rosace à huit pointes. Le tympan est couvert de tuiles céramiques décoratives. De chaque côté de l'arche se trouve une paire de fenêtres à arc rond au rez-de-chaussée et par une fenêtre ronde avec entrelacs d'étoiles à cinq pointes, entourés d'un panneau décoratif au premier étage. Les panneaux au-dessus du tympan sont aussi couverts de tuiles céramiques décoratives.
Les deux avancées latérales ont chacune une porte décorée surmontée d'un panneau décoré au rez-de-chaussée et une niche à arc circulaire qui unit les fenêtres doubles du premier et du deuxième étage. Un panneau décoratif se trouve en dessous de chaque fenêtre.
Les Tables de la Loi trônent au centre de la façade, au-dessus de la corniche.

Les façades sud et nord sont identiques. Les parties du côté ouest, correspondant à l'avant de la synagogue, plus étroite, sont divisées en deux par des pilastres. La partie est, correspondant à la grande salle de prières, est divisée en trois par des pilastres. De nombreuses fenêtres doubles ou triples, ainsi que des oculi permettent d'éclairer l'intérieur de la synagogue.
La façade est de la synagogue est divisée en trois parties par des pilastres. La partie centrale correspond à l'abside, tandis que les deux parties latérales sont composées d'une fenêtre circulaire au rez-de-chaussée, d'une fenêtre double à arc pointu tronqué au premier et d'une fenêtre double à arc en fer à cheval surmonté d'une fenêtre circulaire au deuxième étage. L'abside a cinq facettes, chacune possèdent au niveau du premier étage, une fenêtre double à arc rond, surmontée d'une petite fenêtre circulaire. Les fenêtres sont situées à l'intérieur d'une niche à arche circulaire
Le dôme en forme de bulbe repose sur un tambour cylindrique, qui repose lui-même sur une base à 16 facettes, elle-même disposée sur une base octogonale. Le tambour cylindrique est percé de 16 fenêtres à arc rond. Le dôme lui-même est constitué d'une double coquille. La coquille extérieure est en métal selon les plans originaux, et devait être recouverte d'une décoration métallique qui n'a pas été réalisée. Au-dessus du dôme, la flèche est terminée par une étoile de David à six branches.

L'intérieur de la synagogue
La partie ouest du bâtiment comprend au rez-de-chaussée tout d'abord deux vestibules, puis deux pièces auxiliaires et au premier étage une grande pièce. Deux escaliers conduisent aux galeries des femmes au premier et au deuxième étage.
La partie est, plus importante est formée du hall de prières avec une abside, et est entourée au premier et deuxième étage, sur les côtés nord, sud et ouest, par les galeries des femmes. Deux petites pièces se trouvent de chaque côté de l'abside à tous les niveaux.
Les hommes entrent dans la synagogue par l'une des trois portes centrales de la façade ouest. Après avoir passé le vestibule, ils pénètrent dans le hall de prière, une grande salle de 20,5 mètres par 16,5 mètres. Les femmes entrent par les portes des tours latérales et montent par l'un des deux escaliers jusqu'aux galeries réservées aux femmes. Les deux étages des galeries sont supportés par des colonnes métalliques doubles, et renforcés dans les coins par deux groupes de quatre colonnes métalliques. Les colonnes de la galerie supérieure supportent des arcs plein cintre, trois sur chaque côté. Ces arcs forment le carré sur lequel repose l'octogone duquel part quatre arcs en ogive aveugles alternant avec quatre trompes en saillie qui supportent un tambour cylindrique à seize fenêtres sur lequel repose la coquille intérieure légèrement courbée du dôme.

L'Arche sainte est placée au fond de l'abside construite dans le mur est. Celle-ci légèrement surélevée est séparée du hall par une grande arche semi-circulaire supportée de chaque côté par une colonne avec imposte. Quatre marches permettent de passer du hall à l'abside, et à leur hauteur, devait se trouver un pupitre orienté vers les fidèles qui devait servir de bimah (autel). La lecture de la Torah en faisant face aux fidèles est typique des synagogues réformées.
L'Arche sainte est formée d'une structure en pierre en trois parties, dont la section centrale, plus haute que les autres, de surface carrée au sol, comprend l'arche pour les rouleaux de Torah à laquelle on accède en montant trois marches. La façade possède un portail avec deux colonnes et est surmontée d'un arc aveugle à trois lobes au-dessus de l'architrave. La surface intérieure de l'arche et son tympan sont couverts de décorations florales; dans la frise au-dessus est inscrite l'inscription en hébreu: "Sais devant qui tu te tiens" (Pirke Avot 3:1). Les sections latérales sont des portails avec des colonnes doubles supportant des arcs aveugles en fer à cheval, avec des panneaux décoratifs. Les trois sections sont couronnées de crêtes à motif floral.
Les sièges dans la partie centrale du hall, ainsi que dans la galerie ouest et sous les parties ouest des galeries nord et sud, sont orientés vers l'est de façon à faire face à l'Arche sainte et à l'autel. Les sièges dans les galeries sont placés sur une estrade en bois graduellement surélevée. Comme le signale l'architecte[4], cet arrangement est conforme au cahier des charges qui imposait que tous les fidèles puissent voir l'autel et l'Arche sainte.
Les murs, les arches, les balustrades et les chapiteaux des colonnes sont richement décorés de motifs néo-mauresques. Les surfaces du dôme principal et du dôme de l'abside sont décorés de motifs géométriques formés de polygones entrelacés et de nombreuses petites étoiles de David, et les trompes sont chacune décorées d'une conque.
Galerie
Photo de la façade nord de la synagogue vers 1920
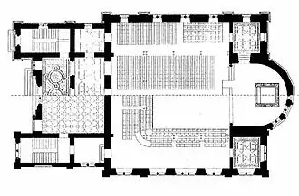
Plan d'implantation de la synagogue. La maison du gardien n'a jamais été construite
Coupe de la synagogue avec vue vers le nord
Plan d'architecte des décorations des voûtes et du plafond
Références
- ↑ Allgemeine Zeitung des Judentums ; 1857 ; no. 43 (19.10); pp. 589-90
- ↑ Allgemeine Zeitung des Judentums ; 1858 ; no. 18 (26.4); p. 247
- ↑ Julian Zachariewicz; Israelitischer Tempel in Czernowitz; Allgemeine Bauzeitung; 1882,;#47; pp. 48-49
- ↑ Zachariewicz, p49
Bibliographie
- (de) : Allgemeine Zeitung des Judentums, 1857, no. 43 (19.10), p. 589–90.
- (de) : Allgemeine Zeitung des Judentums, 1858, no. 18 (26.4), p. 247.
- (de): Bildarchiv der Österreichischen Nationalbibliothek.
- (de): “Chernauts,” in: Pinkas hakehilot : Romania, vol. 2 (Jerusalem, 1980), p. 487–511.
- (de): Gold, Hugo (ed.), Geschichte der Juden in der Bukowina, 2 vols. (Tel Aviv, 1958-62).
- (de): Zachariewicz, Julian, "Israelitischer Tempel in Czernowitz", Allgemeine Bauzeitung, 1882, #47, p. 48–49, ills. 28-32.
- (de): Corbea-Hoisie, Andrei (ed.), Jüdisches Städtebild Czernowitz (Francfort sur le Main, 1998).
- (de): Sha`ari, David, Die jüdische Gemeinde von Czernowitz in Harald Heppner (ed.), Czernowitz: Die Geschichte einer ungewöhnlichen Stadt (Köln, Weimar, Wien, 2000), p. 103–127
- (de): Sternberg, Hermann, Zur Geschichte der Juden in Czernowitz (Tel Aviv 1962).
Liens externes
- (en): Site de la communauté juive de Czernowitz
- (en): Histoire des Juifs de Bucovine (1919-1944)
- (en): Jewish virtual library: Histoire des Juifs de Chernovtsy
- Portail de la culture juive et du judaïsme
- Portail de l’Ukraine
- Portail de la Roumanie
- Portail de l’architecture et de l’urbanisme
- Portail du XIXe siècle
.jpg)
