Agora romaine
L'agora romaine est une ancienne place publique d'Athènes. L'agora (en grec ancien : ἀγορά) désigne dans la Grèce antique le marché central et le lieu de rassemblement d'une ville. Le terme correspond au forum de la civilisation romaine. Il y avait à Athènes deux agoras voisines mais distinctes : l'une est l'agora d'Athènes proprement dite qui remonte au VIe siècle av. J.-C., l'autre, un peu plus à l'est, a été établie sous la domination romaine.
L'agora romaine, comme l'agora classique, est située au nord de l'Acropole d'Athènes dans le quartier actuel de Pláka, près de la place Monastiráki.

Histoire

- période hellénistique
- période romaine
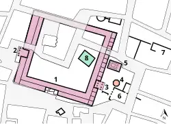
- période ottomane 1. Stoas
2. Porte d'Athéna (Propylée ouest)
3. Propylée est
4. Tour des Vents
5. Vespasianae
6. Agoranomeion
7. Panthéon (emplacement exact inconnu)
8. Mosquée Fethiye
Durant la seconde moitié du Ier siècle av. J.-C., l'édification de l'odéon d'Agrippa et le transfert de plusieurs édifices religieux au cœur de l'agora d'Athènes accrut la densité urbanistique du centre économique, culturel et religieux de la ville. Dès lors, le manque d'espace à disposition des artisans et marchands favorisa l'essor d'activités commerciales en plein-air autour de l'agora classique, notamment dans le quartier d'Aérides[1].
En 51 av. J.-C., l'épimélète d'emporion athénien Hérode de Marathon obtint de Jules César son soutien financier pour la construction des bâtiments publics de la nouvelle agora mais les instabilités politiques eurent finalement raison du projet[2]. Une trentaine d'années plus tard, Euklès, fils d'Hérode de Marathon, parvint à obtenir de l'empereur Auguste en visite à Athènes le financement de la nouvelle agora[1] et les travaux eurent lieu entre 19 et 11 av. J.-C.[3]. Sous le règne d'Hadrien, empereur philhellène qui fit ériger une bibliothèque monumentale au nord de l'agora romaine, les bâtiments bénéficièrent d'agrandissement et la cour fut couverte de dalles en marbre[3].
À la suite du pillage de la ville par les Hérules en l'an 267-268 apr. J.-C., la nouvelle enceinte fortifiée laissa l'agora classique dévastée hors les murs et le centre de gravité d'Athènes fut transféré autour de l'agora romaine et de la bibliothèque d'Hadrien[3].
Au cours des périodes byzantine et ottomane, la zone perdit sa vocation politique et économique et devint progressivement un quartier d'habitations, qui fut démoli, entièrement fouillé et mis en valeur à partir du XIXe siècle.
Description
L'agora romaine occupait un large espace rectangulaire de 111 m par 98 m[4] formé par un ensemble de stoas abritant des boutiques. À l'ouest, on accédait au vaste complexe de portiques à colonnade par la porte d'Athéna, porte monumentale à quatre colonnes doriques supportant un large fronton. L'accès oriental était un propylée d'ordre ionique. Sur le côté est se dresse encore aujourd'hui la tour des Vents, une horloge publique datant du IIe siècle av. J.-C., ainsi que les vespasianae, un bâtiment abritant des latrines publiques.
Non loin de la tour des Vents se trouve également la mosquée Fethiye, construite entre 1668 et 1670 à l'emplacement d'une basilique byzantine du VIIIe–IXe siècle convertie en mosquée lors de la prise d'Athènes par les Ottomans en 1456, qui a longtemps servi de dépôt de fouilles[5]. Après avoir été fermée pour restauration de 2010 à 2017, elle a rouvert au public en en tant qu'espace culturel[6].
Galerie
- L'agora romaine
- La porte d'Athéna
Vestiges des latrines publiques- Colonnade et mosquée Fethiye
- Agora romaine et porte d'Athéna
Références
- (de) Cet article est partiellement ou en totalité issu de l’article de Wikipédia en allemand intitulé « Römische Agora » (voir la liste des auteurs).
- 1 2 Michael Hoff 1989, p. 1.
- ↑ (en) Alkistis Choremi, « The Roman Agora: The first commercial center of Athens », (consulté le ).
- 1 2 3 (en) « Roman Agora of Athens – History », sur odysseus.culture.gr (consulté le ).
- ↑ (en) « Roman Agora of Athens – Description », sur odysseus.culture.gr (consulté le ).
- ↑ (el) Thanásis Giochálas et Tónia Kafetzáki, Αθήνα. Ιχνηλατώντας την πόλη με οδηγό την ιστορία και τη λογοτεχνία [« Athènes. Retracer la ville avec un guide d'histoire et de littérature »], Athènes, Estia, , 664 p. (ISBN 978-960-05-1559-6), p. 20 et 75.
- ↑ (el) Marilena Astrapellou, « Νέοι καιροί για το Φετιχιέ τζαμί », (consulté le ).
Voir aussi
Articles connexes
Bibliographie
: document utilisé comme source pour la rédaction de cet article.
- (en) Michael Hoff, « The early history of the Roman agora at Athens », Bulletin Supplement (University of London. Institute of Classical Studies), vol. 55, , p. 1-8.

- Portail de la Grèce antique
- Portail d'Athènes et de l'Attique
- Portail de l’archéologie