Abbaye de Silvacane
| Fondation | 1144 |
|---|---|
| Début construction | XIIe siècle |
| Fin construction |
XIIIe siècle XVe siècle (réfectoire) |
| Dissolution | 1450 |
| Abbaye-mère | Abbaye de Morimond |
| Abbayes-filles | Abbaye Notre-Dame de Valsaintes |
| Congrégation |
Ordre cistercien (désaffectée aujourd'hui) |
| Période ou style |
Roman cistercien Gothique (réfectoire) |
| Protection |
|
| Coordonnées | 43° 42′ 58″ N, 5° 19′ 45″ E |
|---|---|
| Pays |
|
| Région |
|
| Département |
|
| Commune |
|
| Site | https://www.abbaye-silvacane.com/ |
|
|
L'abbaye de Silvacane, dite autrefois abbaye de Sauvecanne, est une abbaye cistercienne située dans la commune de La Roque-d'Anthéron, dans le département français des Bouches-du-Rhône en région Provence-Alpes-Côte d'Azur.
Elle est fondée en 1144 par des moines venus de l'abbaye de Morimond.
Avec Sénanque et le Thoronet, Silvacane fait partie des trois abbayes cisterciennes de Provence appelées les « trois sœurs provençales » qui témoignent du grand rayonnement de l'ordre cistercien en Provence.
Il s'agit de la plus récente des trois et la seule qui n'ait pas retrouvé une activité conventuelle.
Historique
Étymologie
L'abbaye doit son nom aux marécages à roseaux de la Durance, au bord de laquelle elle est implantée : « silva cannorum », la forêt de roseaux[1].
Construction
C'est en 1144 que les moines s'installèrent dans cette forêt. Et c'est un groupe de cisterciens de Morimond, sous la conduite de l'abbé Othon, demi-frère de l'empereur Conrad III[2], qui remplacèrent les bénédictins en prenant en main l'abbaye de Silvacane dès son affiliation à l'Ordre cistercien et effectuèrent les travaux de bonification des terres environnantes.
Protégée par les grands seigneurs de Provence, les débuts de l'abbaye furent dynamiques. En 1175, Bertrand des Baux entreprit la construction de l'église, où il est enterré. Peu après, en 1188, l'abbaye de Silvacane fonda une filiale à Valsaintes, près d'Apt.
Mais le déclin qui s'amorça dès la fin du XIIIe siècle sera irréversible. Un conflit avec l'abbaye de Montmajour éroda son aura. Le sac de 1358 par le seigneur d'Aubignan et les grandes gelées de 1364 qui anéantirent les récoltes d'olives et de vin entrainèrent le déclin et, pour conclure, les inondations de la Durance, en 1440, détruisirent le monastère[3]. En 1450, l'abbaye fut annexée au chapitre de la cathédrale Saint-Sauveur d'Aix-en-Provence, et les abbés de Valsaintes rétablis.
Devenue église paroissiale de la Roque-d'Anthéron au début du XVIe siècle, elle subit des dégradations pendant les guerres de Religion. Lorsque la Révolution éclate, les bâtiments sont à l'abandon ; divisé en lots et vendus comme bien national en 1790 ils sont transformés en exploitation agricole.
Le classement sur la liste de 1840[4] permet à l'État d'acquérir l'église en 1845. Et, pour effectuer le remembrement de l'ensemble du site, un décret d'expropriation est signé le par Charles de Gaulle et René Capitant, ministre de l'Éducation nationale. Mais les travaux de restauration n'ont pu commencer qu'en 1950.
L'église est alors restaurée par Henri Révoil puis Jean Camille Formigé. Le reste a été progressivement restauré, comme les bâtiments monastiques, le mur d'enceinte et l'hôtellerie des moines. Des fondations découvertes en 1989 ont été également restituées.
La protection des abords de l'ancienne abbaye, au titre des sites est, elle, intervenue par arrêté du [5].
La propriété de l'abbaye (anciennement propriété de l'État, ministère de la Culture) a finalement été transférée à la commune par convention signée le .
Liste des abbés
- 1144-1151 : Othon
- 1151-1162 : Gislebert
- 1162-1168 : Vivien
- 1168-1177 : Hugues Ier
- 1177-1193 : Raymond Ier
- 1193-1196 : Albéric
- 1196-1200 : Félix
- 1200-1207 : Bertrand Ier
- 1207-1215 : Barthélémy
- 1215-1223 : Pons de Vallis
- 1223-12?? : Michel I
- 12??-1242 : Norbert
- 1242-1269 : Guillaume Ier Arnaudi
- 1269-1285 : Guillaume II Goy
- 1285-1289 : Bernard Fabry
- 1289-1290 : Gautier
- 1290-1293 : Pierre Ier Rostaing
- 1293-1306 : Grimier
- 1306-1317 : Bermond
- 1317-1328 : Raymond II de Jonquières
- 1328-13?? : Guillaume III de Cadenet
- 13??-1348 : Bertrand II de Cadenet
- 1348-1352 : Boniface
- 1352-1359 : Pierre II Samson
- 1359-1367 : Armand de Spolète
- 1367-13?? : Pierre II Giraudi
- 13??-1400 : Girard
- 1400-1415 : Jean Ier Saisine
- 1415-1420 : Bertrand III Sereni
- 1420-1440 : Antoine de Boniface de Carcès, était en 1432 également abbé de l'abbaye Notre-Dame de Valsaintes, sous le nom d' Antoine III de Boniface
- 1440-1443 : Jean II d'Archimbaud
- 1443-1449 : Jean III du Bouchage
- 1449-1450 : Nicolas de Brancas-Villosc
- 1450-1477 : Roger
- 1477-1483 : Isnard de Grasse
- 1483-1486 : Robert de Naucourt
- 1486-1499 : Accurse de La Pierre
- 1499-1504 : Guillaume IV de Puget
- 1504-1507 : Pierre III Baudouin
- 1507-1516 : Michel II Baudouin
- 1516-1520 : Jean IV Cotteron
- 1520-1526 : Claude Cotteron
- 1526-1552 : Jean V de Coriolis
- 1552-1579 : Michel III de Brun
- 1579-1601 : Gilbert-Charles Desbiès
- 1601-1627 : Joseph I Pellicot
- 1627-1629 : Joseph II Pellicot
- 1629-1632 : Louis I Marchier
- 1632-1638 : Boniface Pellicot
- 1638-1648 : Antoine d'Arbaud de Bargemont
- 1648-1671 : Jean VI de Chazelles
- 1671-1690 : Joseph III Figuière
- 1690-1701 : Gabriel de Cosnac d'Espeyrac
- 1702-1714 : Benjamin de Juliac de La Vergne
- 1714-1724 : François de Fargues
- 1724-1730 : Daniel-Joseph de Cosnac de Linoire
- 1730-1732 : Augustin de Cadenet de Tamarlet de Charleval
- 1732-1737 : Louis II Lauthier
- 1737-1767 : André I Bernard-Constance de Forbin d'Oppède
- 1767-1778 : André II François de Maurel de Mons de Valbonnette
- 1778-1780 : Jean-Baptiste de Gautier d'Aiguines
- 1780-1785 : Paul de Boyer d'Argens d'Eguilles
- 1786-1790 : Balthazar-Simon-Suzanne de L'Enfant
Source : Gallia Christiana
Architecture
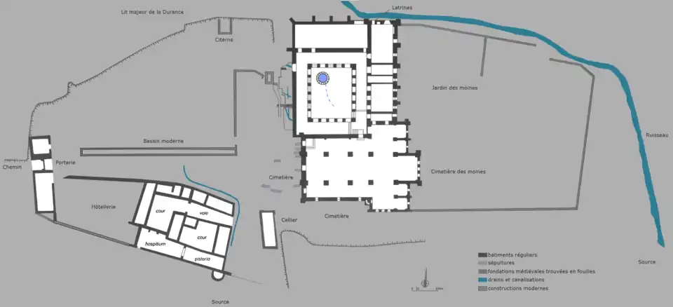
Plan d'ensemble de l'abbaye

L'église abbatiale
L'église abbatiale est édifiée en pierre de taille assemblée en grand appareil régulier et est couverte de tuiles.
Elle constitue un excellent exemple de l'architecture cistercienne de transition roman-gothique puisqu'elle combine des éléments stylistiques romans et gothiques :
- baies en plein cintre caractéristiques de l'architecture romane ;
- voûte en berceau brisé caractéristique de l'architecture de transition roman-gothique ;
- croisée d'ogives caractéristique de l'architecture gothique.
Le chevet
L'église abbatiale présente un chevet carré très sobre, percé d'une grande rosace et d'un triplet constitué de deux baies en plein cintre encadrant une baie plus haute, symbole de la Trinité.
Ce chevet est soutenu par deux puissants contreforts situés aux angles.
Le clocher
La croisée du transept est surmontée par un petit clocher carré sans toit percé sur chaque face de baies géminées en plein cintre séparées par une colonnette à chapiteau et logées sous un arc de décharge.
La façade principale
La façade principale, tripartite, est segmentée par deux puissants contreforts.
La partie centrale de la façade est percée d'un portail en plein cintre à triple voussures dont l'archivolte est ornée de deux arcs toriques (boudins) reposant sur des chapiteaux encadrés de chapiteaux à feuilles d'eau, motif typique de l'architecture cistercienne que l'on retrouve à l'intérieur de l'abbatiale. Le tympan aveugle repose sur un puissant linteau.
Ce portail est surmonté d'un triplet de baies en plein cintre similaire à celui du chevet surmontées d'un grand oculus à moulures.
Les parties latérales de la façade sont chacune percée d'une fenêtre en plein cintre à simple ébrasement et d'une porte en plein cintre surmontée d'un linteau et d'un tympan aveugle.
L'intérieur
L'église abbatiale fut construite de 1175 à 1230.
La nef principale est couverte d'une voûte en berceau brisé soutenue par de puissants arcs-doubleaux prenant appui sur d'imposants piliers cruciformes.
La croisée du transept est couverte d'une croisée d'ogives mais on retrouve la voûte en berceau brisé au chœur, dans la nef et les deux parties du transept.
- La nef.
- Le chœur.
Vue de la nef côté portail.
Chapiteaux à feuilles d'eau.
Il faut remarquer également les motifs d'une très grande précision qui composent ses chapiteaux carrés à feuilles d'eau, motif typique de l'architecture cistercienne.
Le cloître
- La galerie nord et sa porte.
- La galerie ouest.
Porte d'accès au lavabo.
Le cloître, aux murs très épais, a été édifié au XIIIe siècle.
Comme l'église, il combine des éléments stylistiques romans et gothiques. Les galeries présentent une voûte en berceau et sont percées de baies en plein cintre. Chacune de ces baies abritait initialement une paire de baies ogivales séparées par d'élégantes colonnettes et surmontées d'un oculus mais ces baies ogivales ont été détruites : il en subsiste une reconstitution au niveau de la galerie nord. Les autres baies présentent encore, telles des cicatrices, le départ des arcs ogivaux et, dans certains cas, les pieds des colonnettes.
Le lavabo se dresse devant la porte menant à l'aile nord du cloître et au réfectoire, afin que les moines se purifient les mains avant de toucher le pain, symbole sacré. Ce lavabo en pierre, nettement plus modeste que celui de l'abbaye de Valmagne, est orné d'anneaux et de colonnettes supportant des arcatures trilobées.
Les bâtiments annexes
La salle du chapitre et la salle des moines sont du XIIIe siècle.
À l'est du cloître, la salle des moines est dotée d'élégantes voûtes gothiques du XIIIe siècle. Au nord du cloître, le grand réfectoire, reconstruit en 1423, est plus richement orné que le reste du monastère car il a été bâti à un moment où la règle de saint Bernard était respectée avec bien moins de rigueur et d'austérité.
- Lavabo du cloître.
Salle des moines ou salle du chauffoir.
L'abbaye aujourd'hui
Rachetée par l'État en 1846, l'abbaye a conservé en grande partie son aspect d'origine grâce à l'intervention des architectes des monuments historiques, qui l'ont restaurée durant près d'un siècle.
Elle accueille chaque année quelques prestigieux concerts du célèbre festival de piano de la Roque-d'Anthéron et du festival international de quatuors à cordes du Luberon.
Filiation et dépendances
Silvacane est fille de l'abbaye de Morimond
- 1188 - Abbaye Notre-Dame de Valsaintes, c'est à cette date que Bertrand Rambaud, seigneur de Simiane donne la terre et seigneurie de Bolinette ou Bolenette, en présence de l'abbé Raimond Ier, du prieur et autres religieux de Sauvecanne, dont on conjecture que l'abbaye Notre-Dame de Valsaintes dépendait alors. En effet, il ne paraît pas qu'avant cette époque, il y ait eu à Valsaintes des abbés particuliers. Après les guerres de religion, ses moines l'abandonnèrent pour regagner Sauvecanne à laquelle tous les revenus furent unis par décret du chapitre général de l'ordre de Citeaux, tenu en 1425. L'abbé de Sauvecanne eut tout à la fois la jouissance des deux abbayes, comme on le voit dans un titre du . Cette union dura peu, les abbés de Valsaintes furent rétablis après que l'inondation arrivée en 1440, eut détruit le monastère de Sauvecanne[6].
Notes et références
- ↑ Guy Barruol et Jean-Maurice Rouquette, Promenades en Provence romane, Zodiaque, 2002, p. 59.
- ↑ Raoul Bérenguier, Abbayes de Provence, Paris, Nouvelles Éditions Latines, , 90 p.Silvacane, p. 40 à 43
- ↑ Hugues du Tems, op.cit, p.53.
- ↑ « L'ancienne abbaye : classement par liste de 1840 », notice no PA00081416, sur la plateforme ouverte du patrimoine, base Mérimée, ministère français de la Culture
- ↑ Site inscrit par arrêté du 13 septembre 1943.
- ↑ Hugues du Tems, op. cit., p.53.
Voir aussi
Bibliographie
- Hugues Du Tems, Le Clergé de France ou tableau historique et chronologique des…, Chez Delalain, Paris, 1774, 4. vol., t.I, pp. 53 et suivantes.
- François Cali, L'Ordre cistercien, d'après les trois sœurs provençales, Sénanque, Silvacane, Le Thoronet, Paris, Arthaud, rééd. Hazan, 2005
- Marcel Aubert, « L'abbaye de Silvacane », dans Congrès archéologique de France. 95e session. Aix-en-Provence et Nice. 1932, Paris, Société française d'archéologie, (lire en ligne), p. 123-143
- Yves Esquieu, « L'abbaye de Silvacane », dans Congrès archéologique de France. 143e session. Le pays d'Aix. 1985, Paris, Société française d'archéologie, (lire en ligne), p. 284-296
- Michel Fixot et Jean-Pierre Pelletier, « Découvertes archéologiques récentes à l'abbaye de Silvacane », dans Congrès archéologique de France. 143e session. Le pays d'Aix. 1985, Paris, Société française d'archéologie, (lire en ligne), p. 297-299
- Michel Fixot et Jean-Pierre Pelletier, « Porteries, bâtiments d'accueil et métallurgie aux abbayes de Silvacane et du Thoronet », Archéologie médiévale, no 20, , p. 181-252 (lire en ligne)
- Yves Esquieu, Silvacane, Rennes, Caisse nationale des monuments historiques et des sites - Éditions Ouest-France, , 32 p. (ISBN 2-7373-1455-0)
- Nathalie Molina, chercheur associé du Laboratoire d'archéologie médiévale méditerranéenne de l'université d'Aix-en-Provence, L'Abbaye de Silvacane, Paris, éditions du patrimoine, coll. « Itinéraires du patrimoine », , 48 p. (ISBN 2-85822-262-2)
- (fr + en + de) Coordination générale : René Dinkel, Élisabeth Decugnière, Hortensia Gauthier, Marie-Christine Oculi, Suivez le guide - Monuments Historiques Provence Alpes Côte d'Azur, Marseille, Direction régionale des affaires culturelles et Conseil régional de Provence–Alpes-Côte d'Azur (Office régional de la culture), 1er trimestre 1986, 198 p. (ISBN 2-906035-00-9)Guide présentant l'histoire des monuments historiques ouverts au public en Provence – Alpes – Côte - d'Azur, avec cartes thématiques : 2. Architecture médiévale (traduit en allemand et anglais en septembre 1988). Notice Roque-d'Anthéron (La) p. 110. Rédaction des notices : CRMH : Martine Audibert-Bringer, Odile de Pierrefeu, Sylvie Réol. Direction régionale des antiquités préhistoriques (DRAP) : Gérard Sauzade. Direction régionale des antiquités historiques (DRAH) : Jean-Paul Jacob directeur, Armelle Guilcher, Mireille Pagni, Anne Roth-Congés Institut de recherche sur l'architecture antique (Maison de l'Orient et de la Méditerranée-IRAA)-Centre national de la recherche scientifique.
- Raoul Bérenguier, Abbayes de Provence, Paris, Nouvelles Éditions latines, coll. « Art et Tourisme », , 94 p.Silvacane pp. 40 à 43.
- Charles-Laurent Salch et Anne-Marie Durupt, Nouvel Atlas châteaux et fortifications des Bouches-du-Rhône (13), Strasbourg, Châteaux-forts d'Europe, , 156 p. (ISSN 1253-6008)N° 46/47/48, 2008 Roque-d'Anthéron (La), abbaye fortifiée, p. 104.
- Jean-François Leroux-Dhuys (texte), Henri Gaud (photographies), Les Abbayes cisterciennes en France et en Europe, Paris, éditions Place des Vosges, , 400 p. (ISBN 2-84459-000-4)Seconde partie : le monde cistercien en Europe.
Articles connexes
- Art cistercien
- Ordre cistercien
- Liste d'abbayes cisterciennes de France
- Autres abbayes cisterciennes de Provence :
- Abbaye de Reillanne chartreuse
- Abbaye Notre-Dame de Valsaintes à Simiane-la-Rotonde
Liens externes
- Abbaye cistercienne de Silvacane - Site officiel
- L'abbaye de Silvacane sur Abbayes en Provence
- de Silvacane, sur le site Patrimages de la Drac Paca
- de l'abbaye de Silvacane : répertoire des dossiers numérisés (Monuments historiques)
- L'architecture de Silvacane sur romanes.com
- L'abbaye cistercienne de Sylvacane sur cheminsetjardins.blogspot.fr
- Silvacane, abbaye cistercienne sur dignois.fr
- Abbaye de Silvacane sur vmfpatrimoine.org, page 19
- Portail du catholicisme
- Portail de l’architecture chrétienne
- Portail du monachisme
- Portail du tourisme
- Portail des Bouches-du-Rhône
- Portail des monuments historiques français


