Église Saint-Saturnin de La Libarde
de La Libarde

| Destination initiale | |
|---|---|
| Destination actuelle |
Vestiges, visite |
| Dédicataire |
Saint Saturnin |
| Style | |
| Construction |
XIe siècle |
| Propriétaire |
Commune |
| Patrimonialité |
| Pays | |
|---|---|
| Département | |
| Commune |
| Coordonnées |
45° 02′ 53″ N, 0° 33′ 34″ O |
|---|

L'église Saint-Saturnin de La Libarde est située sur la commune de Bourg, dans le département de la Gironde. Il ne reste que des vestiges de l'église, mais sa crypte, dont les dernières modifications datent de la deuxième moitié du XIe siècle, est intacte.
Les vestiges de l’église, la crypte et l’enclos du cimetière sont inscrits[1] aux Monuments historiques en 1965.
Localisation
Située à un kilomètre au nord du village de Bourg dans le lieu-dit de La Libarde (qui fut une paroisse jusqu’à la Révolution et fait partie actuellement de la commune de Bourg), l’ancienne église Saint-Saturnin ne présente plus que les pierres de ses fondations et sa crypte.
Historique
Une église dédiée à saint Saturnin existait à la Libarde dans la deuxième moitié du XIe siècle. Selon Léo Drouyn[3], elle était très probablement construite sur le site d'une villa gallo-romaine et la crypte serait une partie d'un temple carolingien.
|
À partir des vestiges existants, des Rôles gascons et de certains documents de l’archevêché de Bordeaux on peut tirer les grandes lignes de l'histoire de la Libarde et son église :
- L'église romane du XIIe siècle avait une nef et des collatéraux.
- Au XVIIe siècle, l’édifice fait l’objet de remaniements de la limite entre le chœur et la nef puisque cette dernière est séparée du chœur par 12 marches.
- Avant la fin du XIIe siècle, cette église fut incendiée.
- En 1417-18, Henri V, roi d'Angleterre, concéda à Guillaume Clifford, capitaine du château de Fronsac, la terre de Libarde.
- En 1425-26, Henri VII la céda à Louis de Falces.
- En 1668, l'église appartenait au chambrier de l'abbaye de Bourg.
- Un titre du XVIIIe siècle indique qu'il possédait deux ailes et, au centre, une grande voûte soutenue par des colonnes. Des fresques décoraient l'intérieur. Elles furent retirées par une ordonnance de l'archevêque datant de 1669.
- En 1765, la foudre détruisit la façade ouest.
- En 1789, François de Belhade était seigneur de la Libarde.
- L'église fut pillée après la révolution de 1789 et rasée en 1823.
Description de l'église
L'église primitive (voir le plan, la teinte la plus foncée indique les portions les plus anciennes) paraît avoir été composée d'une large nef recouverte par une charpente, dans le genre des anciennes basiliques ; les murs latéraux, soutenus par de petits contreforts plats, étaient bâtis en petits cubes de pierre de 10 cm2, dans lesquels se trouvaient quelques briques romaines placées sans ordre.
L'église comportait une nef centrale flanquée de deux bas-côtés voutés en berceau qui s'ouvraient sur une abside voûtée en cul-de-four. Elle avait une longueur totale d'environ 31 m ; la nef d'environ 11 m de large. Son sanctuaire était situé au-dessus de la crypte.
|
|
On descendait dans la crypte par deux arcs, aujourd'hui partiellement bouchés. Un escalier, situé à l'emplacement actuel de la porte d'entrée de la crypte, conduisait au chœur supérieur qui abritait trois autels.
Avant la fin du XIe siècle l'église fut incendiée ; on trouve la preuve de cette catastrophe dans les pierres du petit appareil, qui sont toutes calcinées, et dans des cales en bois enfoncées entre les pierres et complètement carbonisées. La façade de la crypte, bâtie de la même façon, présente aussi des traces d'un feu violent ; mais l'intérieur ne fut pas atteint.
Il fallut rebâtir l'église ; les murs latéraux, du moins celui du nord, qui est encore debout en partie, parurent assez solides pour être conservés, mais on les fortifia par des contreforts intérieurs en pierre de taille ; on divisa l'église en trois nefs, celle du centre plus large que les deux autres, par six piliers carrés cantonnés de colonnes à demi engagées sur leurs faces. Fort probablement l'église fut alors en partie voûtée. Les deux piles à colonnes engagées adossées à la façade de la crypte vinrent condamner l'ouverture des collatéraux et nécessitaient une modification de l'entrée à la crypte et au chœur supérieur. L'autel était sur la voûte de la crypte, et pour y monter on avait pratiqué deux escaliers contre les murs latéraux. L'accès à la crypte se fait par une ouverture centrale, flanquée par deux colonnes engagées et surmonté par un linteau sculpté.
L'abside de la crypte date de cette époque. Les deux piliers de l'avant-chœur furent mutilés pour leur accoler les demi-colonnes supportant l'arc triomphal.
Les terres du cimetière avaient exhaussé le sol environnant, et on profita de cette réparation pour exhausser également le sol de l'église, qui paraît avoir été primitivement presque au niveau de celui de la crypte, de sorte que celle-ci formait une église renfermée dans une autre église.
La crypte
Les cryptes sont rares en Gironde, qui en compte actuellement seulement quatre : à la Basilique Saint-Seurin de Bordeaux ; à l'église Saint-Christophe de Baron ; à l'église Saint-Cyr de Saint-Ciers-d'Abzac et à la Libarde. Un certain nombre d'églises (l'église Saint-Pierre de Rauzan, l'abbaye de Saint-Ferme, l'abbaye Saint-Pierre de Vertheuil, etc.) contiennent un caveau sépulcral sous le chœur, qui est parfois pris pour une crypte.
|
D’après un historien local, M. Coutura, la crypte tombée dans l'oubli, fut redécouverte au moment de raser l’église en 1823. Le monde savant la découvre un peu avant 1840, avec les rapports[4] , [5] pour la société française pour la conservation des monuments historiques de M. de Lamothe, qui relate sa découverte de la crypte ; celui de M. Grellet-Balguerie, qui a consulté les archives de l’archevêché de Bordeaux concernant l'église de Saint-Saturnin et celui de M. Chasteigner, qui a relevé le plan de la crypte et qui s’inquiète de sa dégradation.
|
|
|
A l’entrée de la crypte se trouvent deux colonnes surmontées de chapiteaux romans. Quelques marches permettent de pénétrer à l’intérieur. L’ensemble voûté en plein cintre, est formé d’une nef et de collatéraux.
Le monument est petit : la longueur de la nef est de 5,40 m et de 10 m avec l'abside. Sa largeur totale est de 6,25 m et la nef centrale de 2,80 m. La hauteur, jusqu'au sommet de la voûte est de 3,10 m ; celles des arcs entre la nef et les bas-côtés, de 1,83 m.
La crypte se compose d'une nef et de deux bas-côtés formés chacun de deux travées. Les voûtes en berceau, cintrées d'une façon fort irrégulière, retombent sur une corniche simplement épannelée. La nef centrale est suivie, à l'orient, d'une abside semi-circulaire.
Cette abside est divisée en chœur et sanctuaire, séparés par une simple marche qui élève le sol de cette dernière partie.
Les travées de la nef sont séparées par un arc doubleau retombant, vers l'intérieur, sur deux piliers formés de quatre colonnes accouplées dont le plan forme un quatre-feuille, et vers l'extérieur, sur des colonnes engagées dans les parois. L'arc triomphal est également en plein-cintre et retombe sur des colonnes engagées. Deux très petites fenêtres éclairent l'abside, deux autres sont percées à l'extrémité orientale des bas-côtés.
Les chapiteaux des piliers de la nef et bas-côtés sont à sculpture mi-plate et rappellent la décoration de certaines chapelles d'époque carolingienne.
À l'origine les murs étaient couverts de fresques géométriques polychromes.
La crypte originale était à chevet droit. Lors de la reconstruction de l'église, au XIIe siècle, on y a ajouté une abside qu'on a voûtée en cul-de-four. Pour faire cette addition, on a été obligé d'enlever tout le chevet de la nef centrale, qu'on a remplacé par une arcade en plein-cintre plus haute que la voûte de cette nef. On a mutilé, pour élargir cette ouverture, les chapiteaux qui s'appuyaient contre le chevet, et on a élevé deux colonnes engagées qui supportent cette arcade, devenue ainsi l'arc triomphal.
Les fenêtres de la crypte, toutes extrêmement étroites, indiquent aussi un changement d'époque et de faire : celles du chevet des bas-côtés sont évasées seulement vers l'intérieur ; celles de l'abside, plus modernes, sont évasées en dedans et en dehors.
Au sud du chœur existe une petite piscine incrustée dans la muraille.
Les badigeonneurs ont barbouillé la crypte. Ils ont ainsi recouvert une décoration très ancienne et qui consistait en de simples lignes rouges indiquant un appareil. Les lignes horizontales étaient simples, les verticales doubles. A l'abside, le décorateur avait ajouté sur chaque assise deux lignes diagonales parallèles. Une décoration semblable a couvert les voûtes en berceau ; celle de l'abside paraît avoir été plus riche. Les chapiteaux ont également été décorés de la même façon, et l'on a simulé des moulures sur les tailloirs et les chapiteaux, qui ne sont pas sculptés.
Cette crypte remplace un monument plus ancien, une chapelle carolingienne ou un temple païen gallo-romain du VIe siècle peut-être, car l'église est certainement construite sur le site d'une villa gallo-romaine. On a trouvé, dans le cimetière et dans les environs, des briques à rebord, des fragments de marbres de différentes couleurs, et les débris d'un chapiteau corinthien en marbre blanc.
Les chapiteaux sculptés de la crypte
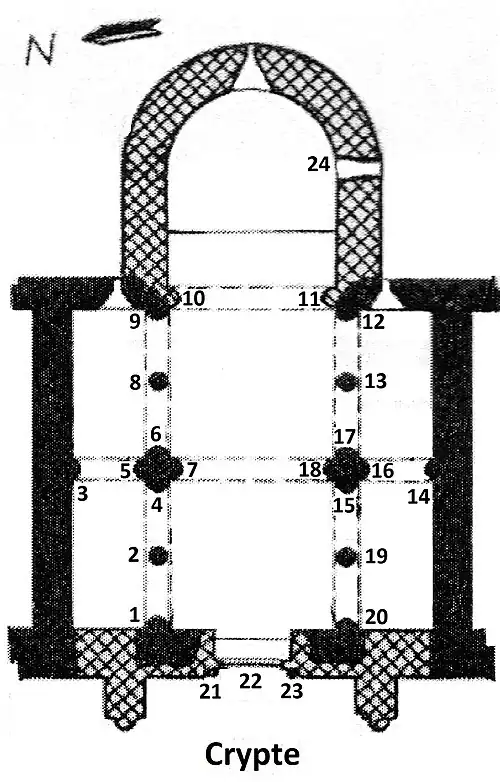
On trouve 23 chapiteaux sculpté dans la crypte et une petite piscine sculpté dans le sanctuaire. Elles datent de deux époques différentes. Les chapiteaux et le linteau de la porte d'entrée (N° 21, 22, 23 sur le plan) et les chapiteaux de l'arc triomphal (N° 10 et 11 sur le plan) de l'abside sont romans et date de la restauration de l'église au XIIe siècle.
Les 18 chapiteaux de la nef et bas-côtés sont beaucoup plus anciens, peut-être carolingiens ou gallo-romans.
La totalité des sculptures sont illustrées sur la page
Les sculptures romanes
La porte d'entrée est encadrée par deux colonnes à chapiteaux sculptés et recouverte par un linteau droit orné d'entrelacs variés.
La corbeille du chapiteau nord est décorée avec un motif végétal sur les deux faces visibles et le tailloir avec une série de demi-cercles entrelacées sur la partie basse et un entrelacs simple sur la partie haute.
Les deux faces de la corbeille du chapiteau sud sont symétriques : on trouve sur chaque face la tête d'un être maléfique (visage humaine, mais petites oreilles pointues et langue pendue) qui crache des rinceaux. Le tailloir est identique à celui du chapiteaunNord et aux deux chapiteaux de l'arc triomphal.
Le linteau de la porte est divisé en deux compartiments. Le compartiment nord est décoré avec un entrelacs et celui du sud avec trois rangées de cercles entrecroisées.
|
L'arc triomphal : Le chevet est séparé de la nef par un arc triomphal reposant sur de courtes colonnettes trapues. Les chapiteaux sont décorés, celui au Nord (N°10) de crossettes formant une acanthe rudimentaire, celui du Sud (N°11) de palmettes plus élégantes.
Sur le tailloir, on a gravé des cintres qui s'entrecroisent. Les bases de ces colonnes sont pourvues de griffes, signe caractéristique du XIIe siècle.
|
Les sculptures « carolingiennes »
|
|
La nef contient 18 chapiteaux qui font partie de l'église ou temple primitive.
Ils sont presque tous cubiques, et dont la partie inférieure passe à l'octogone au moyen de l'épannelage des angles, puis, un astragale les relie à la colonne.
Leur abaque est taillé en biseau. L'abaque et la cimaise sont à peu près de même dimension, mais leur profil varie à chaque chapiteau : quelques-uns sont ornés de moulures losangées.
Les chapiteaux n'ont pas tous la même hauteur, et le niveau général de ceux du nord est plus élevé que celui de ceux du sud.
Certains chapiteaux sont ornés de moulures cylindriques et prismatiques.
Quelques chapiteaux sont figurés :
- Le N°9 un lion bicorporé figurait sur la corbeille. malheureusement, lors de la restauration au XIIe siècle une face de la corbeille a été arasée pour permettre la mise en place de l'arc triomphal (N°10).
- Le N°13 est formé, sur trois côtés, de feuilles d'acanthe mal dessinées, et du quatrième, d'une arcade dans laquelle paraît voler un petit personnage nu.
- Le N°15, sur la face principale on trouve un lion qui tire sa langue et sur les deux petits faces un oiseau de proie, ou peut-être un griffon.
Les autres chapiteaux décorés portent des dessins simples de végétaux. L'ensemble des chapiteaux sont illustrés sur la page
Sculptures semblables dans les environs
Ces sculptures offrent une certaine analogie avec les bas-reliefs du Prieuré de Saint-Macaire, de l'Église Saint-Étienne de Saint-Étienne-de-Lisse et l'église Saint-André de Cestas, qui sont pré-romans et, pour l'église de Cestas, d'origine d'un temple gallo-romain païen[6].
L'avant-corps supérieur de la façade occidentale présente deux pierres de remploi sculptées. Une troisième pierre se trouve sur un contrefort au sud de l'abside, près de la sacristie.
|
|
Les actions de restauration
L'état de la crypte en 1842 est décrit dans La Guienne Historique et Monumentale[7] :
- Dès 1847, des travaux de restauration de la crypte ont été réalisés afin d’en assurer la conservation ainsi que l’assainissement du lieu. Par la suite, un entretien régulier a permis progressivement de ralentir la dégradation du monument. Mais petit à petit, l’humidité a fait apparaître des moisissures.
- En 1860, Drouyn signale des infiltrations d'eau et l'invasion des plantes et racines et l'urgence d'une restauration intelligente.
- Face à l’état sanitaire du monument, la commune de Bourg a fait réaliser une étude préalable à des travaux de restauration en 2002 et a décidé de programmer, en 2007, une première phase de travaux portant sur l’assainissement et le sauvetage de la crypte.
- En 2011, l'installation d'un drainage à la périphérie de la crypte a révélé la présence d'une nécropole datant du Haut Moyen Âge. Certains des sarcophages trapézoïdaux mérovingiens paraissaient fichés dans les fondations de l'abside. Une sépulture rupestre, taillé à même la roche, était profondément engagée sous la construction et seule la partie inférieure du squelette, en deçà des genoux, était visible.
- Le creusement d'une tranchée à travers le cimetière a mis au jour deux autres rangées de sarcophages de la même période. Les remblais sus-jacents témoignaient d'inhumations en pleine terre et du dépôt de cercueils en bois pouvant remonter au XVIe siècle.
- En 2013 la restauration de l'intérieur de la crypte a montré l'existence d'un creusement - peut-être une autre sépulture rupestre - dans l'axe longitudinal de l'avant chœur ainsi qu'une fosse renfermant les restes de plusieurs enfants et adultes à l'entrée de l'abside. Ces inhumations ont pu être datées de la première moitié du XVIIe siècle.
Notes et références
- ↑ « Note d'inscription de l'église et la crypte », notice no PA00083482, sur la plateforme ouverte du patrimoine, base Mérimée, ministère français de la Culture
- ↑ Jean-Auguste Brutails, Les Vieilles Églises de la Gironde, Bordeaux, Féret et fils éd., , 302 p. (lire en ligne)
- 1 2 Léo Drouyn, La Guienne anglaise : histoire et description des villes fortifiées, forteresses et châteaux, construits dans la Gironde pendant la domination anglaise, Bordeaux, , 618 p. (lire en ligne), pages 81-83.
- ↑ Bulletin archéologique tome II, 1842-1843 sur Google Livres
- ↑ Séances générales tenues en 1841 par la société française pour la conservation des monuments historiques sur Google Livres
- ↑ Pierre Jaubert, Dissertation sur un temple octogone et sur plusieurs bas-reliefs trouvés à Sestas, Bordeaux, J.B. Lacornée, , 189 p. (lire en ligne).
- ↑ Alexandre Ducourneau, La Guienne Historique et Monumentale, vol. 1, Bordeaux, P. Coudert, , 511 p. (disponible sur Internet Archive), pages 31-35.
Voir aussi
Articles connexes
Liens externes
- Ressource relative à la religion :
- Ressource relative à l'architecture :
- L'église Saint-Saturnin et la crypte sur le site Visites en Aquitaine
- Portail du catholicisme
- Portail des monuments historiques français
- Portail de la Gironde
- Portail de l’architecture chrétienne



_planche_27_c.jpg)
_planche_26.png)
_planche_27_b.png)




.png)






















